Обяви За нас Контакти
Продава 3-СТАЕН
град Варна, Христо Ботев
143 000 €
279 683.69 лв.

(1 490 €, 2 914.19 лв./m2)
Цената е с включено ДДС
История на цената
Коригирана в 17:30 на 3 февруари, 2026 год.
Обявата е посетена 1237 пъти.
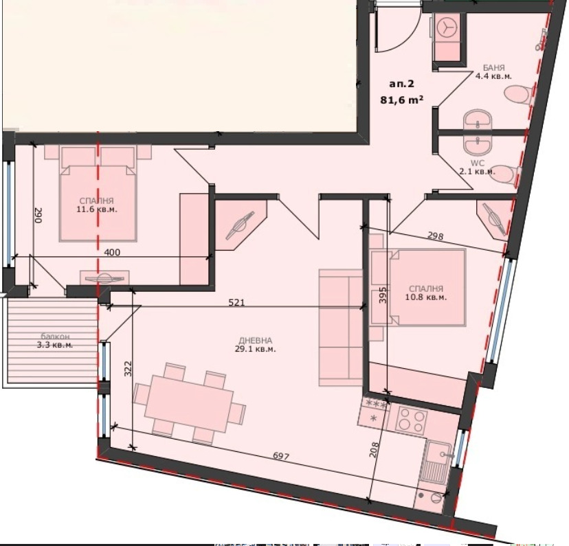
Площ:
96 m2
Етаж:
2-ри от 8
Строителство:
Тухла, Ще бъде въведен в експлоатация 2026 г.

Описание на имота:


Vivahome има удоволствието да Ви предложи за продажба тристаен апартамент с просторни помещения в кв. Христо Ботев!

🏗️ Строителството е на етап разрешение за строеж! Отличен избор за целогодишно живеене.

📐 Разпределение на апартамента:

--> Коридор
--> Просторна всекидневна с кухненски бокс
--> Две спални
--> Санитарен възел /баня и тоалет отделно/
--> Тераса

🎯 Начин на завършване:

-> Петкамерна цветна PVC дограма / цвят тъмен дъб / клас А с нискоемисионно /енерджи / стъкло.
-> Топлоизолационна система EPS -10 см дебелина, клас А на пожарна оценка и положена минерална мазилка парапети: стъклен панел.
-> Стени и тавани: машинно положена гипсова мазилка.
-> Под : положена замазка.
-> Тераси завършени 100 % с положен гранитогрес.
-> Електрическа инсталация завършена на 100% , с монтирани ключове и контакти ; монтиран електромер с
Открита партида към енерго-разпределително дружество.
-> Изградено външно ел. захранване с разрешение за ползване.
-> Изградена мълниезащита.
-> Изградена слаботокова инсталация.
-> Монтирани ВиК тръбни трасета /на тапи/,присъединена към ВиК мрежата с разрешение за ползване.
-> Предварително заложени тръбни трасета за климатик във всеки апартамент.
-> Входни врати: блиндирани ,пожароустоичиви / EI 60 /.
-> Общи части /стълбище и коридори / завършени на 100 % - положен гранитогрес на пода и стълбището, стените измазани и с положена минерална мазилка.
-> Монтирана домофонна система.
-> Дворно място с положени настилки и озеленяване.

📞За повече информация и огледи: Бойко Спасов: 0879991120
VIVAHOME - комплексни решения в сферата на недвижимите имоти !
Разгледайте и другите ни предложения на www.vivahome.bg
Особености
Тухла
Асансьор
За контакт:
0879991120
Брокер:
Бойко Спасов
0879991120
Офис: бул. Васил Левски 10
Още оферти от брокера: Продава | Дава под наем | Купува | Наема
Агенция:
ВИВАХОУМ
0877779462
ВИВАХОУМ logo
Медал за прослужено време
В imot.bg от 2021 г.
vivahome.imot.bg
Адрес:
област Варна, гр. Варна, бул. Васил Левски 10, ет.1, офис 1
ИЗПРАТИ ЗАПИТВАНЕ
ИЗПРАТИ ЗАПИТВАНЕТО

Продава 3-СТАЕН
град Варна, Христо Ботев
Обява: 1c175016521031853

143 000 €
279 683.69 лв.
История на цената
(1 490 €, 2 914.19 лв./m2)

Цената е с включено ДДС
ЗАПАЗИ ОБЯВАТА

Местоположение: град Варна, Христо Ботев

Допълнителни данни за имотите в района и сравнение с други райони

Покажи

Период

и 2 месеца

* Средните цени са определени чрез медианна стойност